cena Mieszkania

544 096 PLN

cena za metr kw.

11 200 PLN

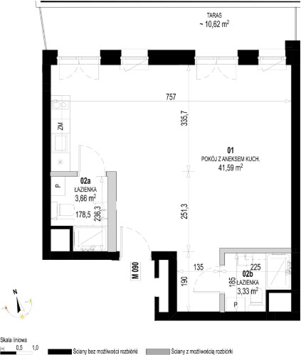
Budynek Św. Rocha Bud.1
Powierzchnia 48,58 m2
Piętro 1 (Piętro I)
Pokoje 1
Taras ok. 10,62 m²
Całkowita cena brutto
544 096 PLN