cena Mieszkania

855 625 PLN

cena za metr kw.

12 500 PLN

Budynek Św. Rocha Bud.1
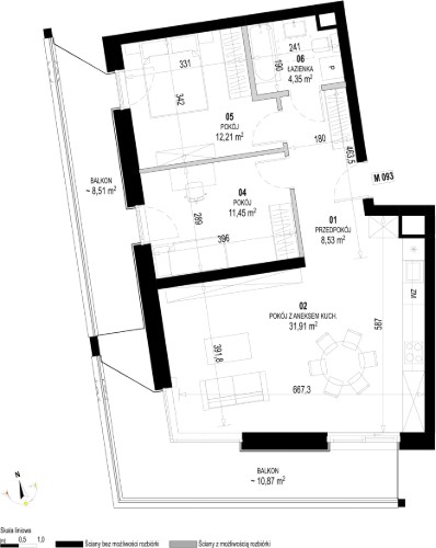
Powierzchnia 68,45 m2
Piętro 1 (Piętro I)
Pokoje 3
Balkon ok. 7,82 m²
Balkon ok. 11,55 m²
Całkowita cena brutto
855 625 PLN