cena Lokalu usługowego (netto)

978 900 PLN

cena za metr kw.

10 000 PLN

Budynek Kopernika 2
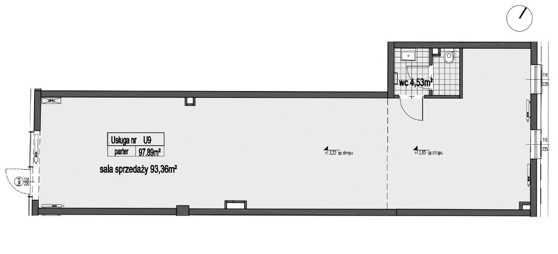
Powierzchnia 97,89 m2
Piętro 0 (Parter)
Całkowita cena netto
978 900 PLN