cena Lokalu usługowego (netto)

2 012 155 PLN

cena za metr kw.

11 500 PLN

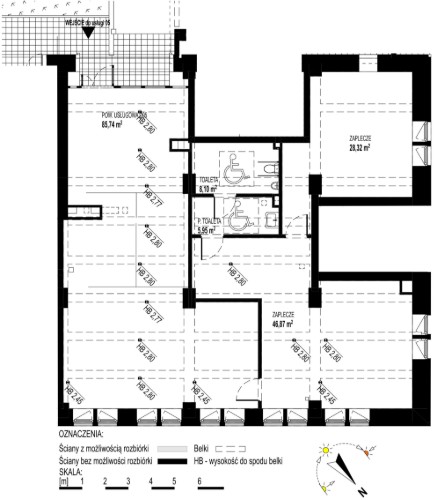
Budynek Sienkiewicza 71/73
Powierzchnia 174,97 m2
Piętro 0 (Parter)
Całkowita cena netto
2 012 155 PLN