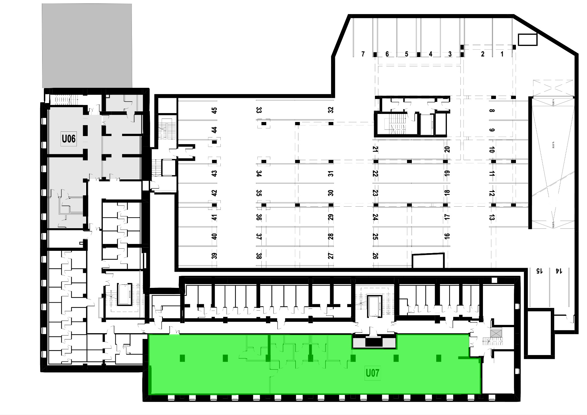
cena Lokalu usługowego (netto)

3 276 005 PLN

cena za metr kw.

11 500 PLN

Budynek Sienkiewicza 71/73
Powierzchnia 284,87 m2
Piętro -1 (Poziom -1)
Całkowita cena netto
3 276 005 PLN