cena Mieszkania

544 334 PLN

cena za metr kw.

11 800 PLN

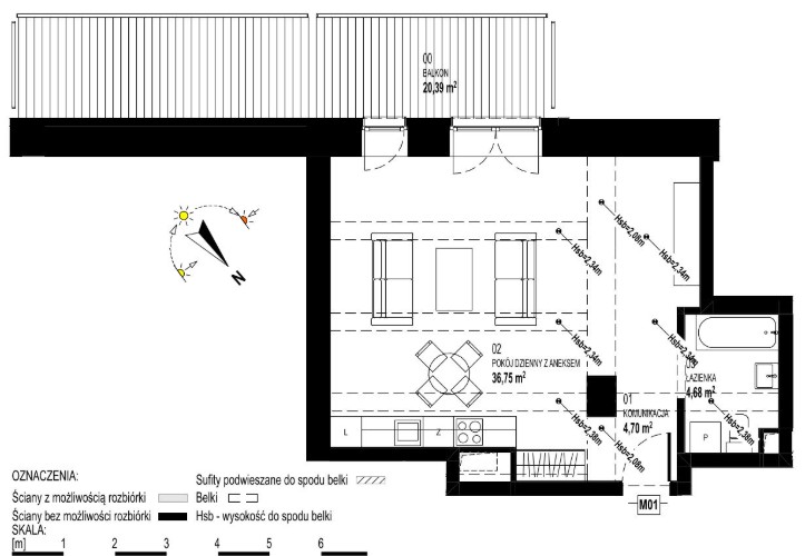
Budynek Sienkiewicza 71/73
Powierzchnia 46,13 m2
Piętro 1 (Piętro I)
Pokoje 1
Balkon ok. 20,39 m²
Całkowita cena brutto
544 334 PLN