cena Mieszkania

761 768 PLN

cena za metr kw.

12 200 PLN

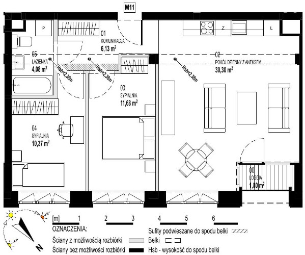
Budynek Sienkiewicza 71/73
Powierzchnia 62,44 m2
Piętro 2 (Piętro II)
Pokoje 3
Loggia 2,44 m²
Całkowita cena brutto
761 768 PLN