cena Mieszkania

749 324 PLN

cena za metr kw.

12 200 PLN

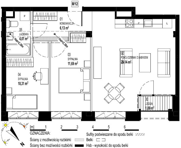
Budynek Sienkiewicza 71/73
Powierzchnia 61,42 m2
Piętro 2 (Piętro II)
Pokoje 3
Loggia 2,55 m²
Całkowita cena brutto
749 324 PLN