cena Mieszkania

751 764 PLN

cena za metr kw.

12 200 PLN

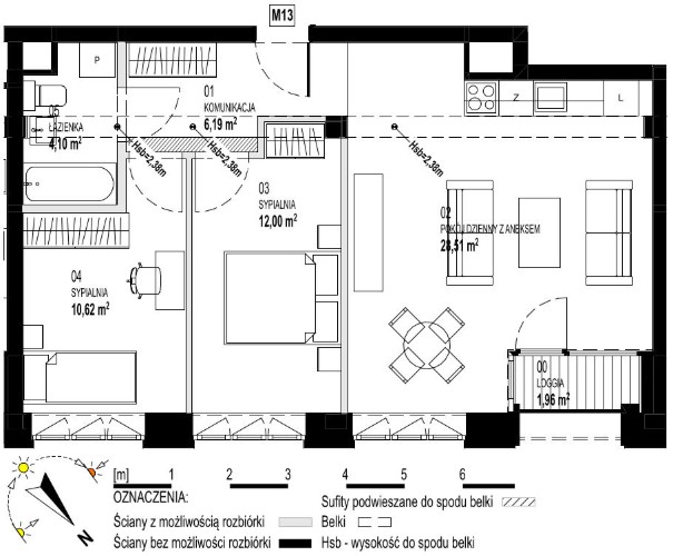
Budynek Sienkiewicza 71/73
Powierzchnia 61,62 m2
Piętro 2 (Piętro II)
Pokoje 3
Loggia 2,63 m²
Całkowita cena brutto
751 764 PLN