cena Mieszkania

756 819 PLN

cena za metr kw.

12 300 PLN

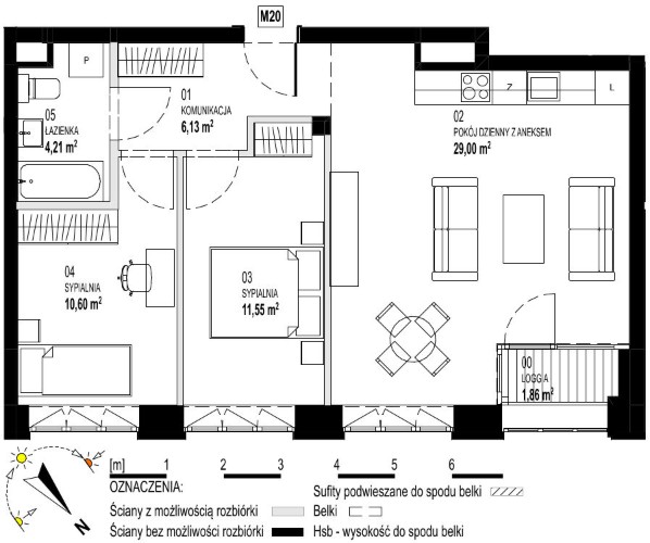
Budynek Sienkiewicza 71/73
Powierzchnia 61,53 m2
Piętro 3 (Piętro III)
Pokoje 3
Loggia 2,51 m²
Całkowita cena brutto
756 819 PLN