cena Mieszkania

1 252 400 PLN

cena za metr kw.

12 400 PLN

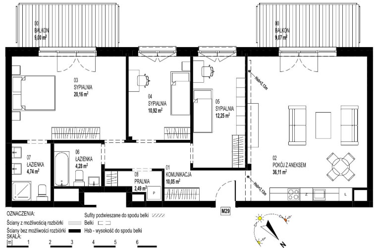
Budynek Sienkiewicza 71/73
Powierzchnia 101,00 m2
Piętro 4 (Piętro IV)
Pokoje 4
Balkon ok. 9,00 m²
Balkon ok. 9,00 m²
Całkowita cena brutto
1 252 400 PLN