cena Mieszkania

748 385 PLN

cena za metr kw.

12 100 PLN

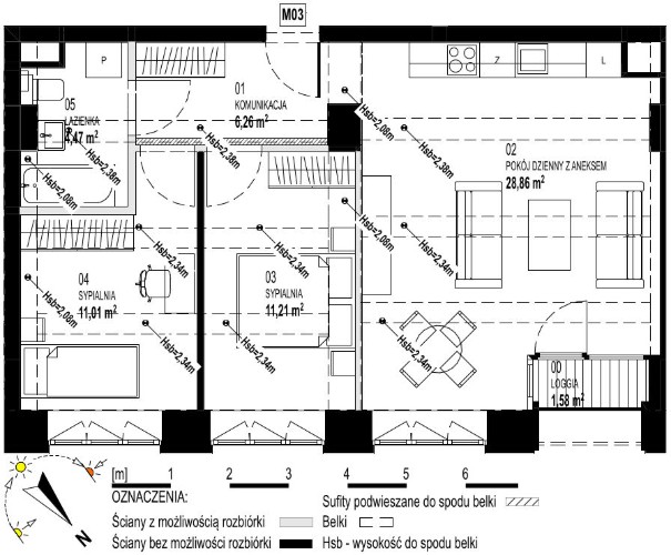
Budynek Sienkiewicza 71/73
Powierzchnia 61,85 m2
Piętro 1 (Piętro I)
Pokoje 3
Loggia 2,44 m²
Całkowita cena brutto
748 385 PLN