cena Mieszkania

754 974 PLN

cena za metr kw.

12 300 PLN

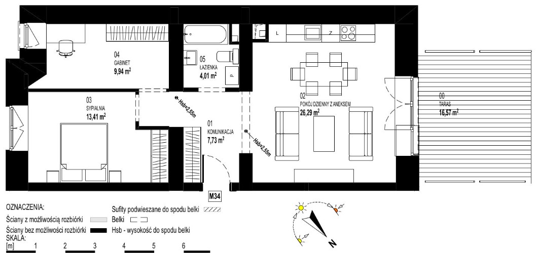
Budynek Sienkiewicza 71/73
Powierzchnia 61,38 m2
Piętro 1 (Piętro I)
Pokoje 3
Taras ok. 16,28 m²
Całkowita cena brutto
754 974 PLN