cena Mieszkania

512 715 PLN

cena za metr kw.

13 300 PLN

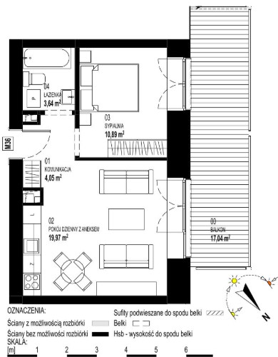
Budynek Sienkiewicza 71/73
Powierzchnia 38,55 m2
Piętro 1 (Piętro I)
Pokoje 2
Balkon ok. 16,91 m²
Całkowita cena brutto
512 715 PLN