cena Mieszkania

861 808 PLN

cena za metr kw.

12 200 PLN

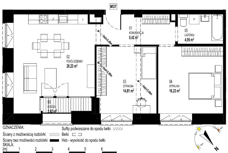
Budynek Sienkiewicza 71/73
Powierzchnia 70,64 m2
Piętro 2 (Piętro II)
Pokoje 3
Całkowita cena brutto
861 808 PLN