cena Mieszkania

777 480 PLN

cena za metr kw.

12 400 PLN

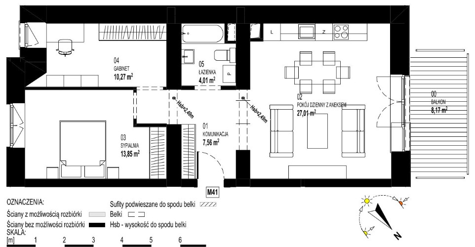
Budynek Sienkiewicza 71/73
Powierzchnia 62,70 m2
Piętro 2 (Piętro II)
Pokoje 3
Balkon ok. 8,17 m²
Całkowita cena brutto
777 480 PLN