cena Mieszkania

866 904 PLN

cena za metr kw.

12 300 PLN

Budynek Sienkiewicza 71/73
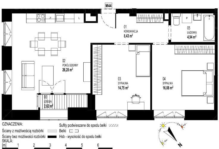
Powierzchnia 70,48 m2
Piętro 3 (Piętro III)
Pokoje 3
Loggia 3,67 m²
Całkowita cena brutto
866 904 PLN