cena Mieszkania

681 490 PLN

cena za metr kw.

11 500 PLN

Budynek Sienkiewicza 71/73
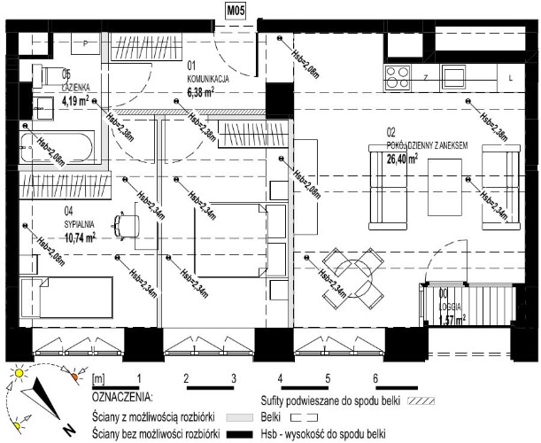
Powierzchnia 59,26 m2
Piętro 1 (Piętro I)
Pokoje 3
Loggia 2,43 m²
Całkowita cena brutto
681 490 PLN