cena Mieszkania

693 160 PLN

cena za metr kw.

12 400 PLN

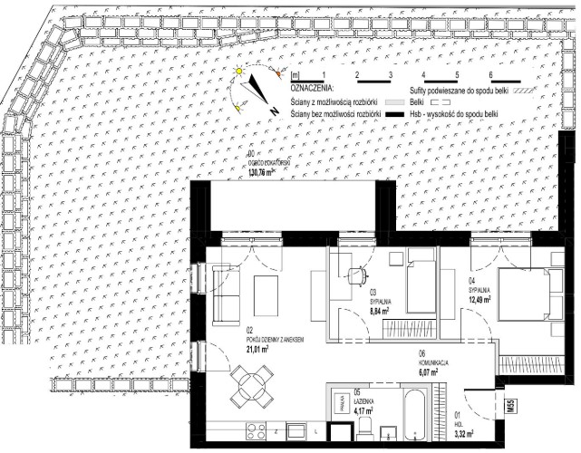
Budynek Sienkiewicza 71/73
Powierzchnia 55,90 m2
Piętro 0 (Parter)
Pokoje 3
Ogródek ok. 133,88 m²
Całkowita cena brutto
693 160 PLN