cena Mieszkania

687 705 PLN

cena za metr kw.

12 700 PLN

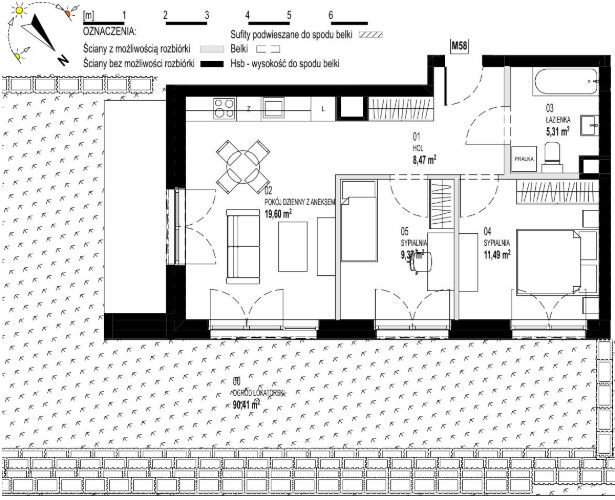
Budynek Sienkiewicza 71/73
Powierzchnia 54,15 m2
Piętro 0 (Parter)
Pokoje 3
Ogródek ok. 64,30 m²
Całkowita cena brutto
687 705 PLN