cena Mieszkania

1 061 795 PLN

cena za metr kw.

11 500 PLN

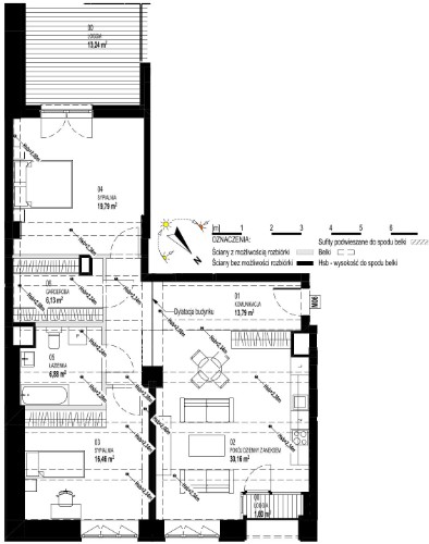
Budynek Sienkiewicza 71/73
Powierzchnia 92,33 m2
Piętro 1 (Piętro I)
Pokoje 3
Balkon ok. 12,22 m²
Całkowita cena brutto
1 061 795 PLN