cena Mieszkania

698 750 PLN

cena za metr kw.

12 500 PLN

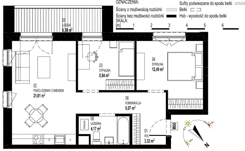
Budynek Sienkiewicza 71/73
Powierzchnia 55,90 m2
Piętro 1 (Piętro I)
Pokoje 3
Balkon ok. 6,58 m²
Całkowita cena brutto
698 750 PLN