cena Mieszkania

632 712 PLN

cena za metr kw.

12 300 PLN

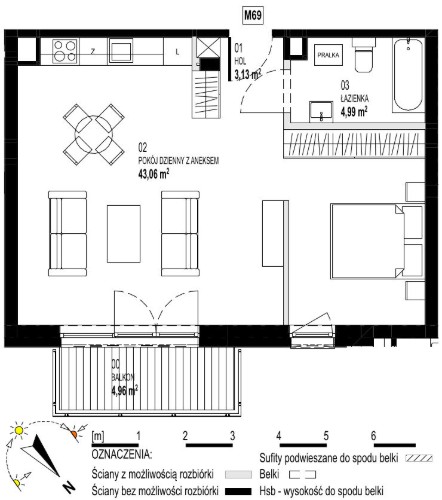
Budynek Sienkiewicza 71/73
Powierzchnia 51,44 m2
Piętro 2 (Piętro II)
Pokoje 1
Balkon ok. 4,96 m²
Całkowita cena brutto
632 712 PLN