cena Mieszkania

743 182 PLN

cena za metr kw.

12 100 PLN

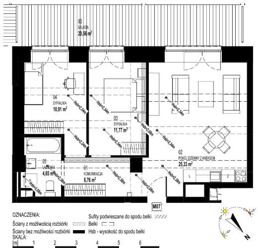
Budynek Sienkiewicza 71/73
Powierzchnia 61,42 m2
Piętro 1 (Piętro I)
Pokoje 3
Balkon ok. 21,56 m²
Całkowita cena brutto
743 182 PLN