cena Mieszkania

820 500 PLN

cena za metr kw.

12 500 PLN

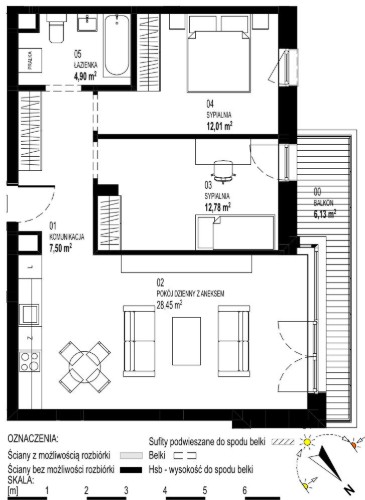
Budynek Sienkiewicza 71/73
Powierzchnia 65,64 m2
Piętro 3 (Piętro III)
Pokoje 3
Balkon ok. 6,13 m²
Całkowita cena brutto
820 500 PLN