cena Mieszkania

637 856 PLN

cena za metr kw.

12 400 PLN

Budynek Sienkiewicza 71/73
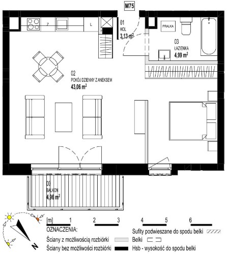
Powierzchnia 51,44 m2
Piętro 3 (Piętro III)
Pokoje 1
Balkon ok. 4,96 m²
Całkowita cena brutto
637 856 PLN