cena Mieszkania

745 674 PLN

cena za metr kw.

9 300 PLN

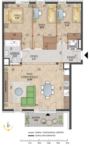
Budynek Mroźna 5B
Powierzchnia 80,18 m2
Piętro 1 (Piętro I)
Pokoje 4
Całkowita cena brutto
745 674 PLN