cena Mieszkania

541 357 PLN

cena za metr kw.

9 700 PLN

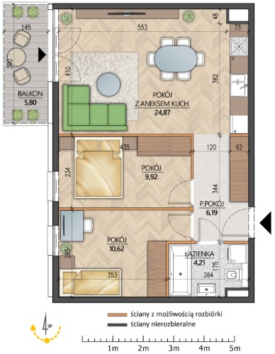
Budynek Mroźna 5B
Powierzchnia 55,81 m2
Piętro 1 (Piętro I)
Pokoje 3
Całkowita cena brutto
541 357 PLN