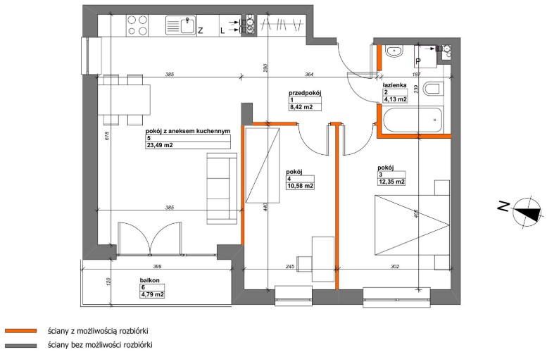
cena Mieszkania

678 155 PLN

cena za metr kw.

11 500 PLN

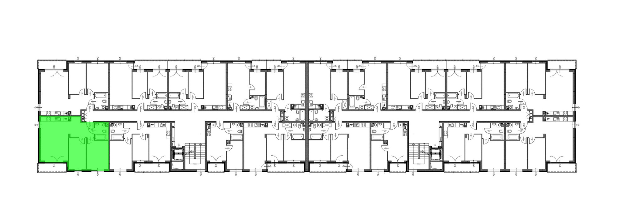
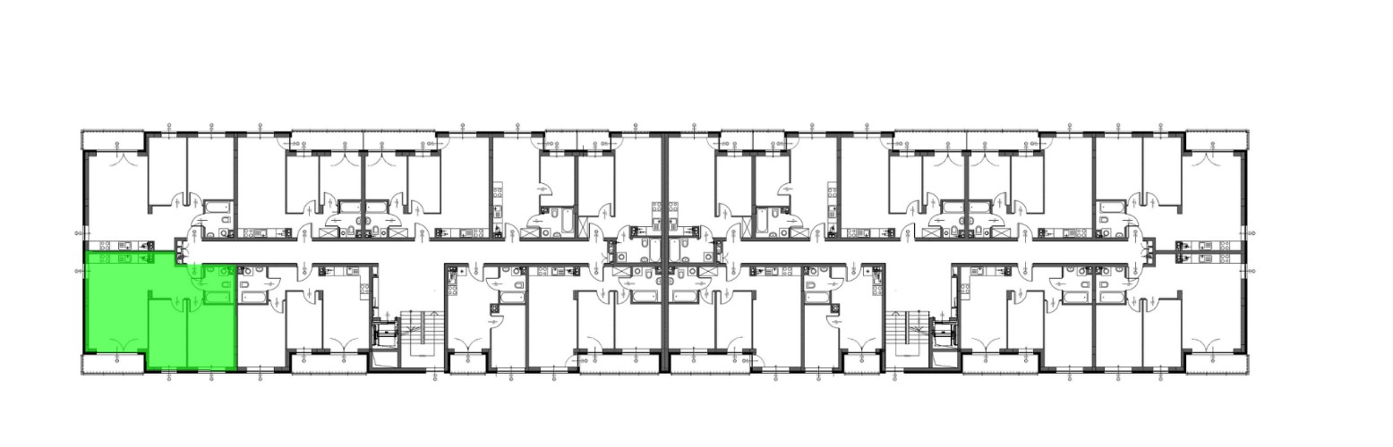
Budynek Konik Polny Budynek A
Powierzchnia 58,97 m2
Piętro 2 (Piętro II)
Pokoje 3
Całkowita cena brutto
678 155 PLN