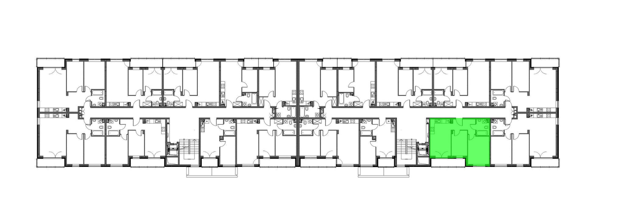
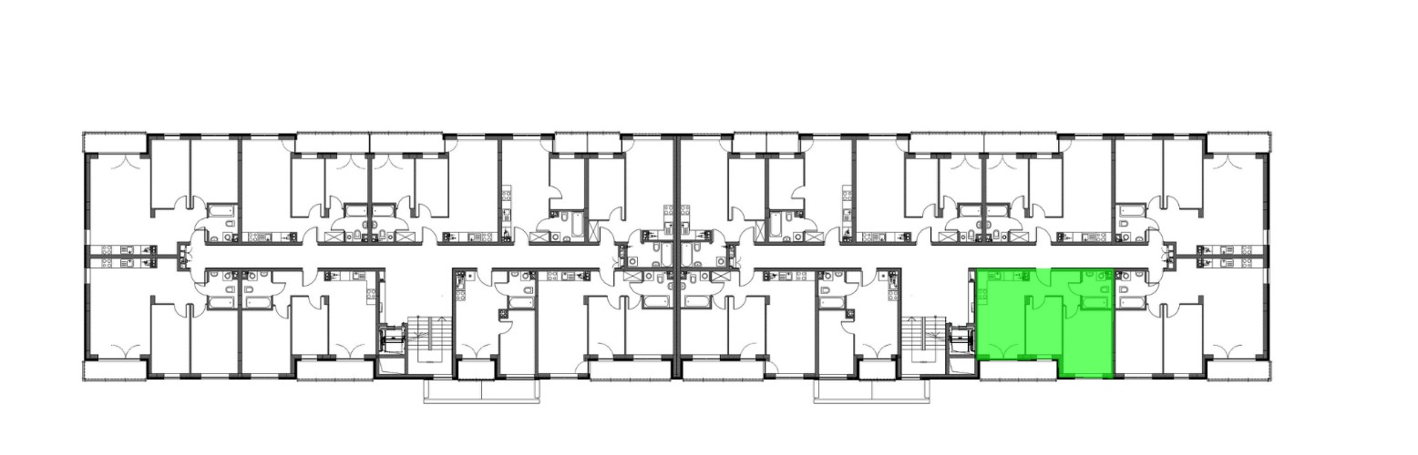
cena Mieszkania

561 720 PLN

cena za metr kw.

12 000 PLN

Budynek Konik Polny Budynek A
Powierzchnia 46,81 m2
Piętro 1 (Piętro I)
Pokoje 3
Całkowita cena brutto
561 720 PLN