cena Mieszkania

855 205 PLN

cena za metr kw.

11 150 PLN

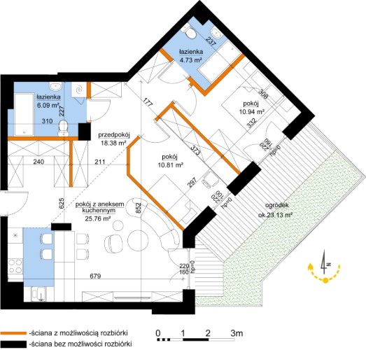
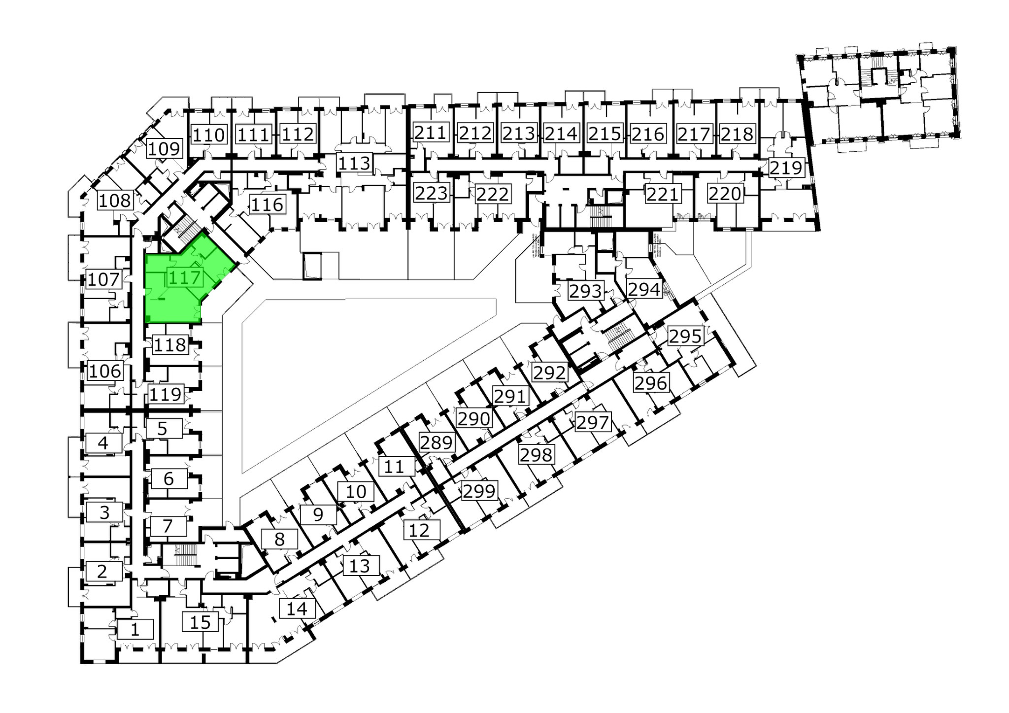
Budynek Młynowa bud. 1
Powierzchnia 76,70 m2
Piętro 1 (Piętro I)
Pokoje 3
Całkowita cena brutto
855 205 PLN