cena Mieszkania

743 705 PLN

cena za metr kw.

11 150 PLN

Budynek Młynowa bud. 1
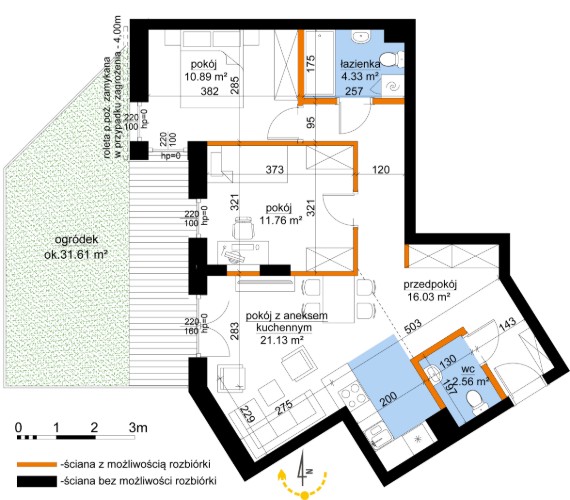
Powierzchnia 66,70 m2
Piętro 1 (Piętro I)
Pokoje 3
Całkowita cena brutto
743 705 PLN