cena Mieszkania

741 164 PLN

cena za metr kw.

11 550 PLN

Budynek Młynowa bud. 1
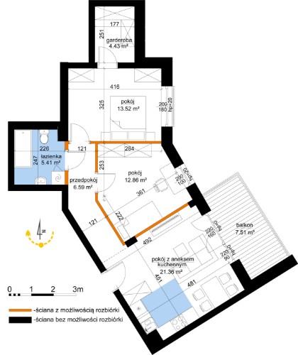
Powierzchnia 64,17 m2
Piętro 5 (Piętro V)
Pokoje 3
Całkowita cena brutto
741 164 PLN