cena Mieszkania

753 998 PLN

cena za metr kw.

11 750 PLN

Budynek Młynowa bud. 1
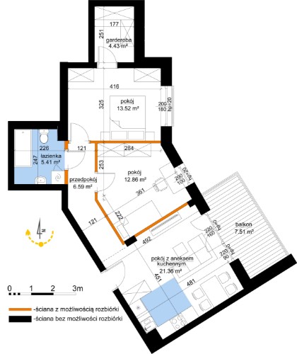
Powierzchnia 64,17 m2
Piętro 7 (Piętro VII)
Pokoje 3
Całkowita cena brutto
753 998 PLN