cena Mieszkania

418 959 PLN

cena za metr kw.

13 150 PLN

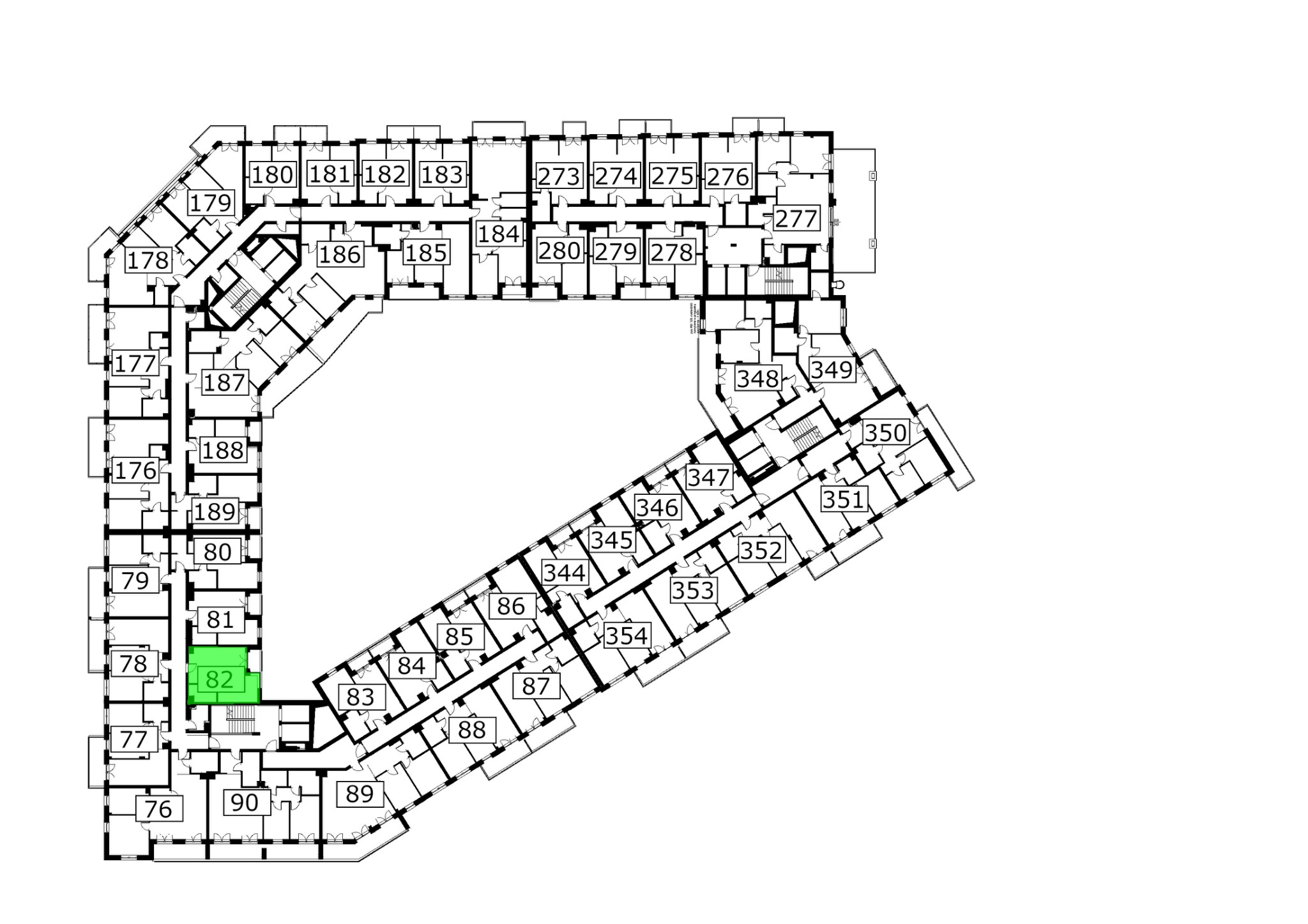
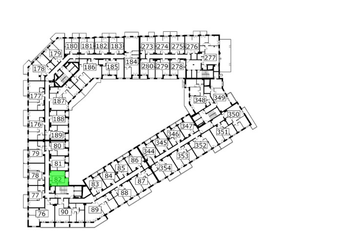
Budynek Młynowa bud. 1
Powierzchnia 31,86 m2
Piętro 6 (Piętro VI)
Pokoje 1
Całkowita cena brutto
418 959 PLN