cena Mieszkania

954 417 PLN

cena za metr kw.

12 450 PLN

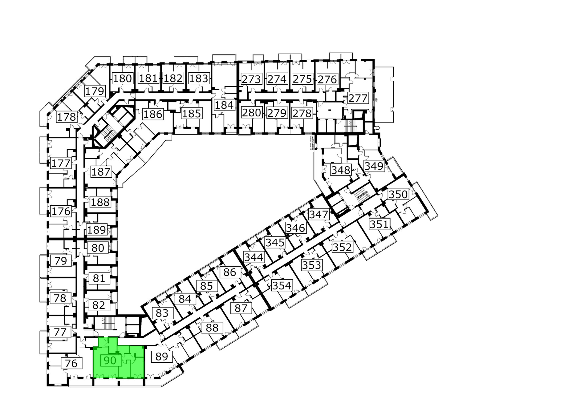
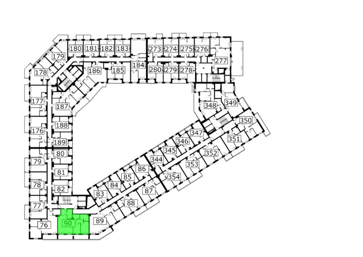
Budynek Młynowa bud. 1
Powierzchnia 76,66 m2
Piętro 6 (Piętro VI)
Pokoje 3
Całkowita cena brutto
954 417 PLN