cena Mieszkania

1 362 500 PLN

cena za metr kw.

23 499 PLN

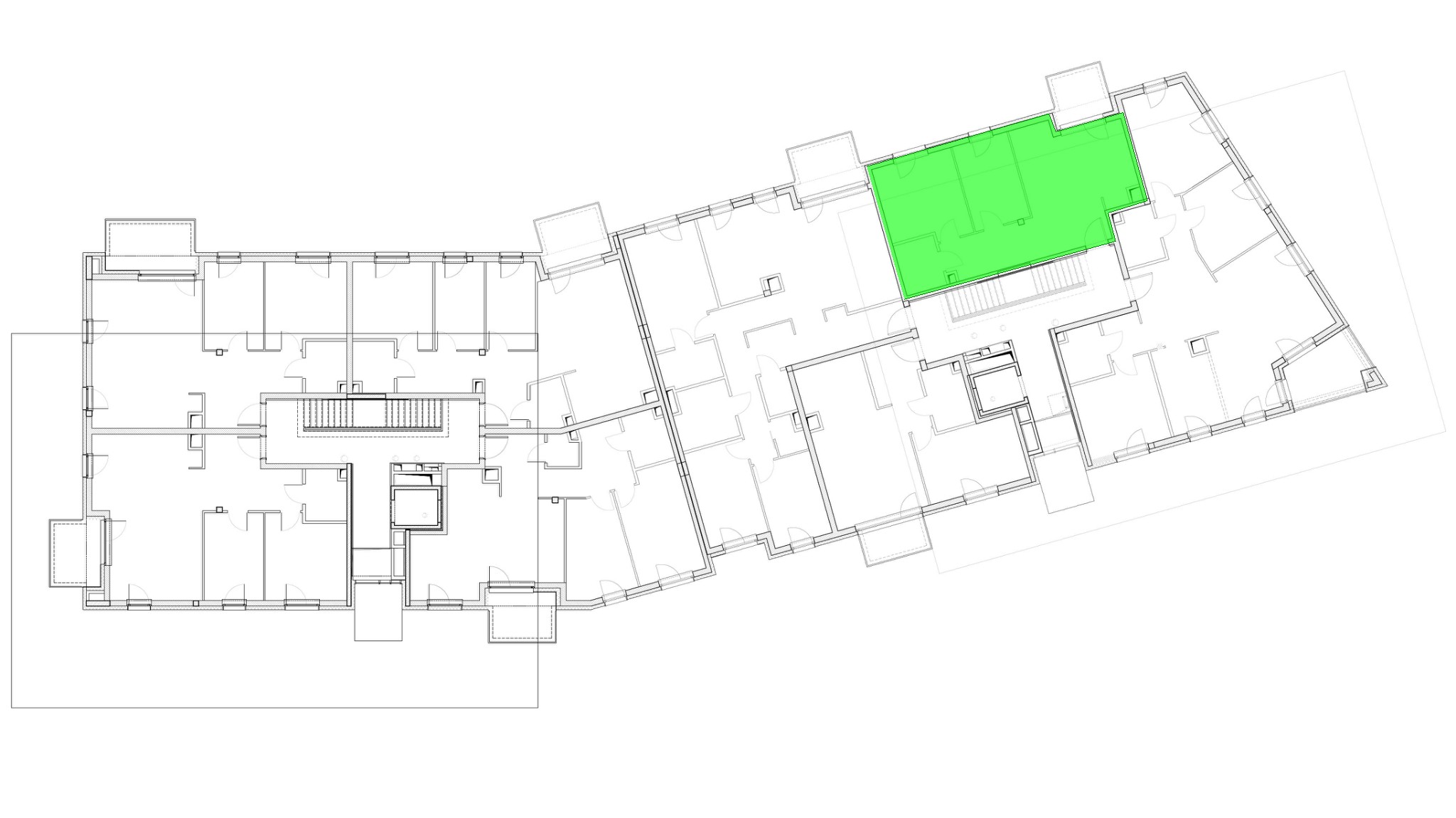
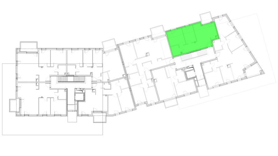
Budynek Szumu Drzew i Kwiatu Paproci K33-4
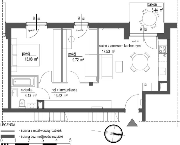
Powierzchnia 57,98 m2
Piętro 2 (Piętro II)
Pokoje 3
Całkowita cena brutto
1 362 500 PLN