cena Mieszkania

1 458 400 PLN

cena za metr kw.

20 000 PLN

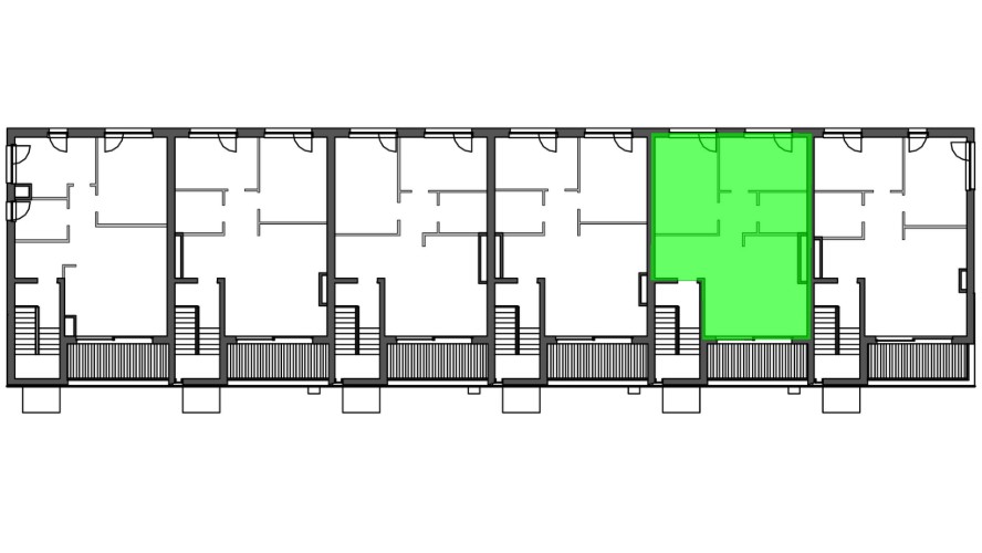
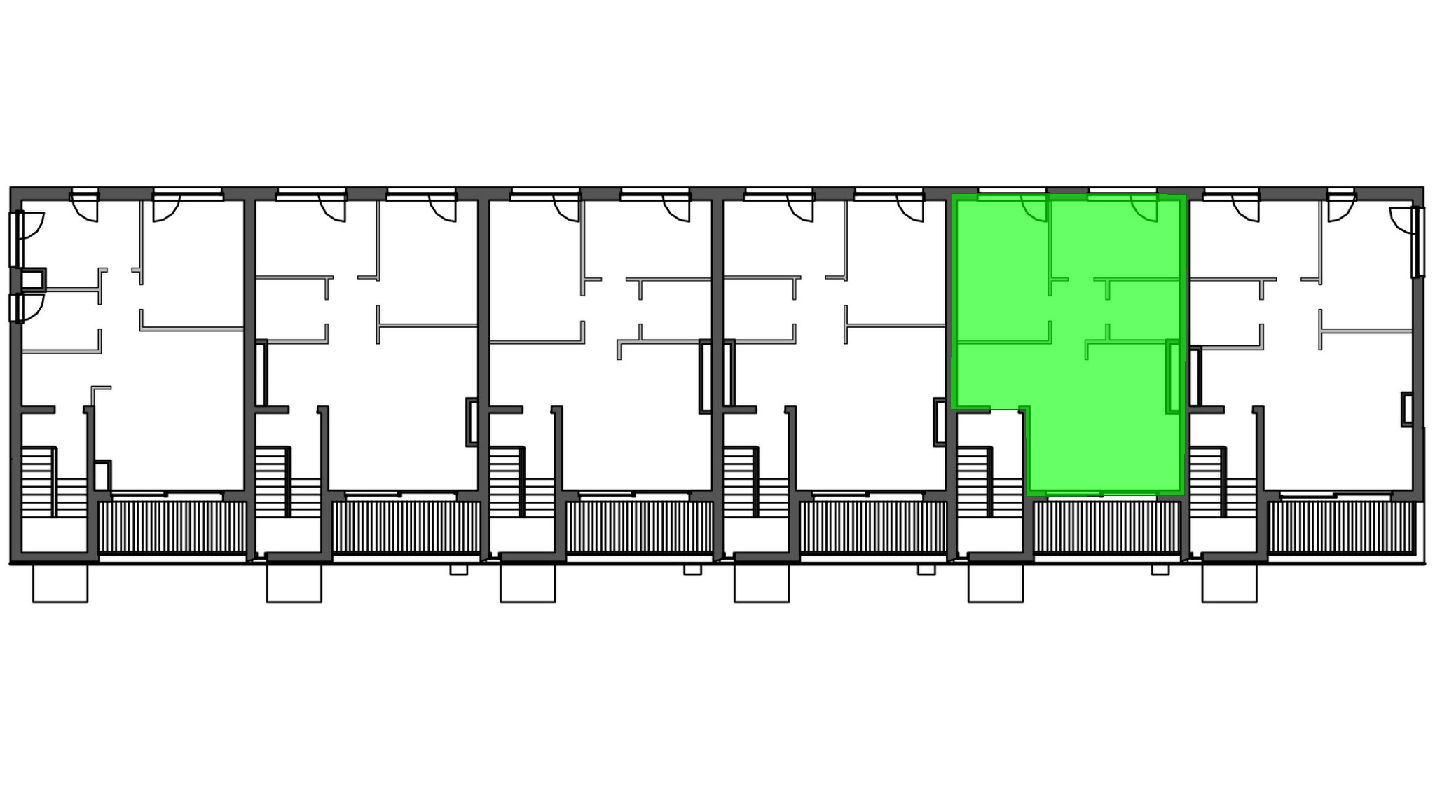
Budynek Szumu Drzew i Kwiatu Paproci K23 S1
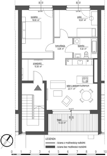
Powierzchnia 72,92 m2
Piętro 2 (Piętro II)
Pokoje 3
Całkowita cena brutto
1 458 400 PLN