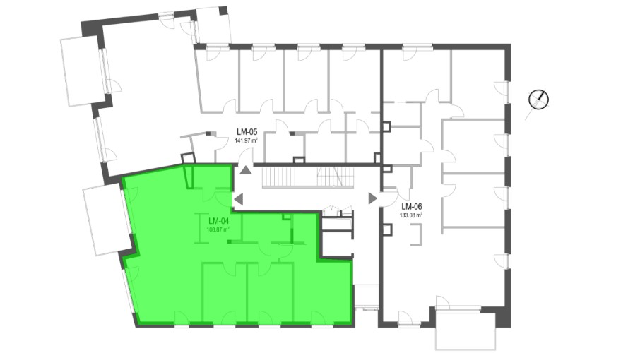
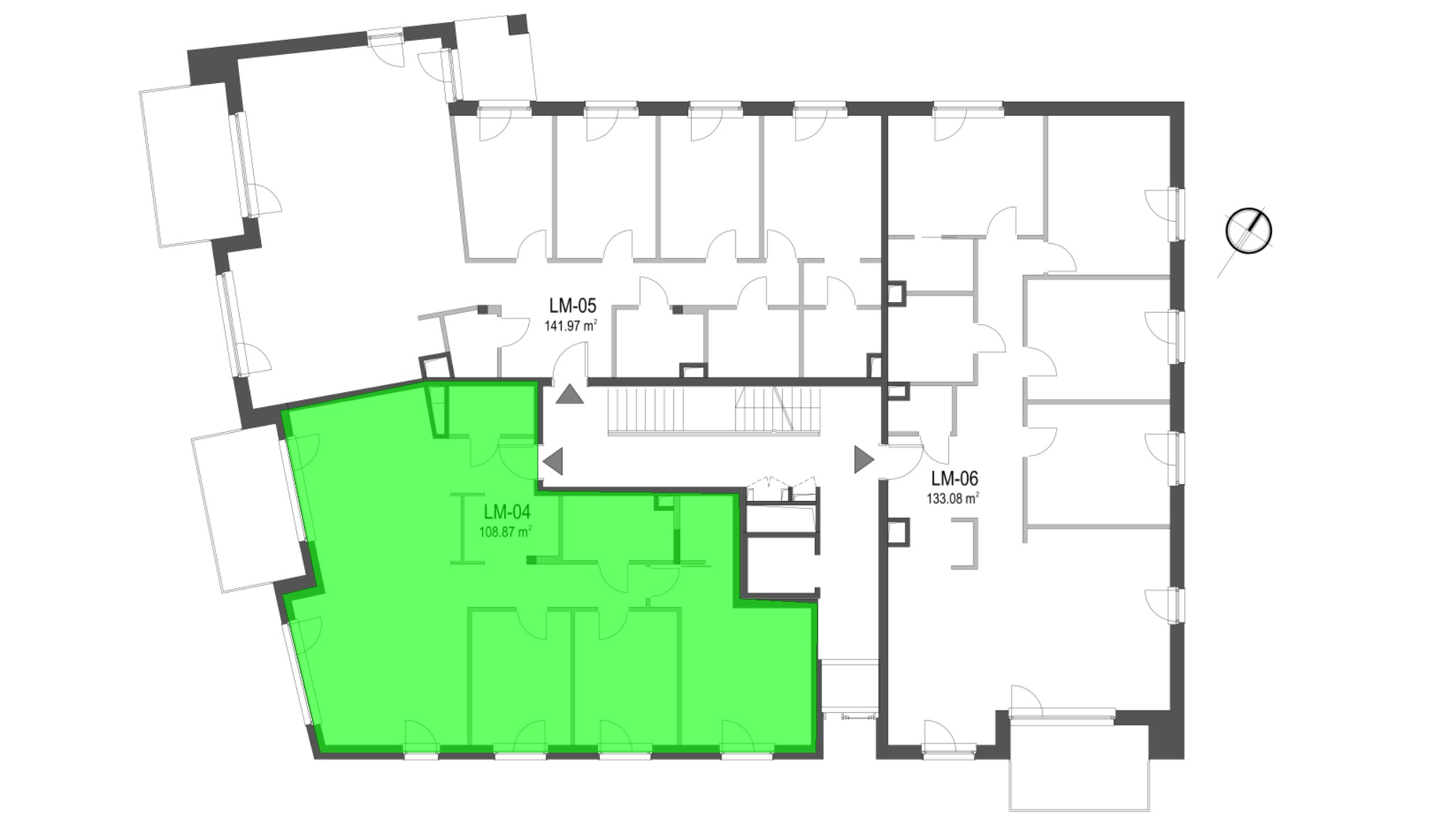
cena Mieszkania

2 885 000 PLN

cena za metr kw.

26 499 PLN

Budynek Szumu Drzew I Kwiatu Paproci K23 WM3
Powierzchnia 108,87 m2
Piętro 1 (Piętro I)
Pokoje 4
Całkowita cena brutto
2 885 000 PLN
Popup zamykający
Zamknij

Zostaw do siebie kontakt

Oświadczam, że zapoznałem się z polityką prywatności