cena Mieszkania

3 163 400 PLN

cena za metr kw.

20 000 PLN

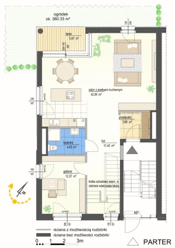
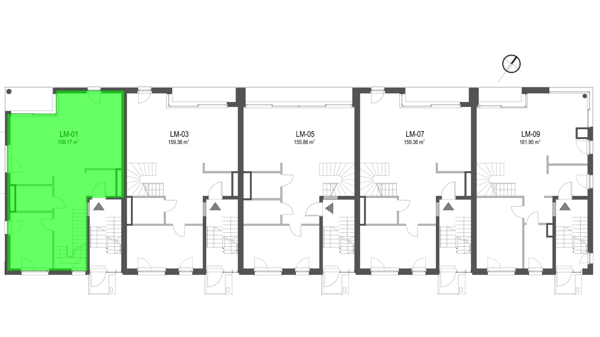
Budynek Szumu Drzew i Kwiatu Paproci K28-S1
Powierzchnia 158,17 m2
Piętro 0 (Parter)
Pokoje 6
Ogródek ok. 460,79 m²
Całkowita cena brutto
3 163 400 PLN
Popup zamykający
Zamknij

Zostaw do siebie kontakt

Oświadczam, że zapoznałem się z polityką prywatności