cena Mieszkania

2 709 120 PLN

cena za metr kw.

17 000 PLN

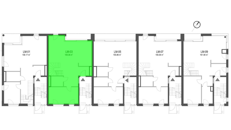
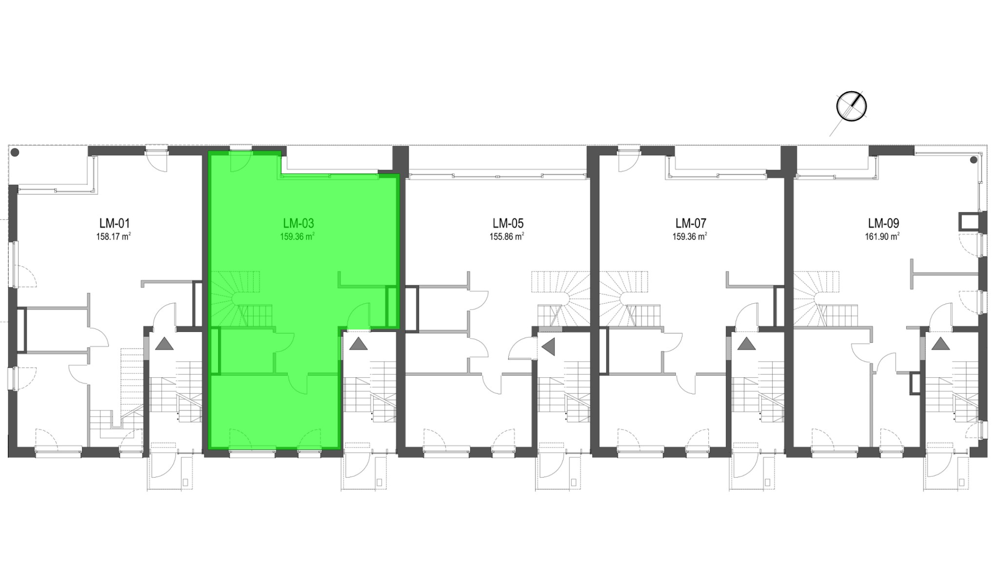
Budynek Szumu Drzew i Kwiatu Paproci K28-S1
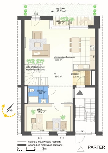
Powierzchnia 159,36 m2
Piętro 0 (Parter)
Pokoje 5
Ogródek ok. 129,10 m²
Całkowita cena brutto
2 709 120 PLN
Popup zamykający
Zamknij

Zostaw do siebie kontakt

Oświadczam, że zapoznałem się z polityką prywatności