cena Mieszkania

1 385 230 PLN

cena za metr kw.

24 500 PLN

Budynek Szumu Drzew i Kwiatu Paproci K33-2
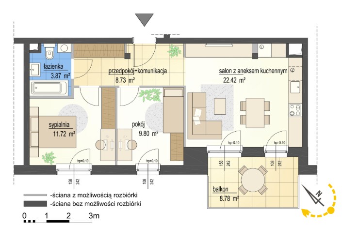
Powierzchnia 56,54 m2
Piętro 1 (Piętro I)
Pokoje 3
Całkowita cena brutto
1 385 230 PLN
Popup zamykający
Zamknij

Zostaw do siebie kontakt

Oświadczam, że zapoznałem się z polityką prywatności