cena Mieszkania

1 838 465 PLN

cena za metr kw.

21 500 PLN

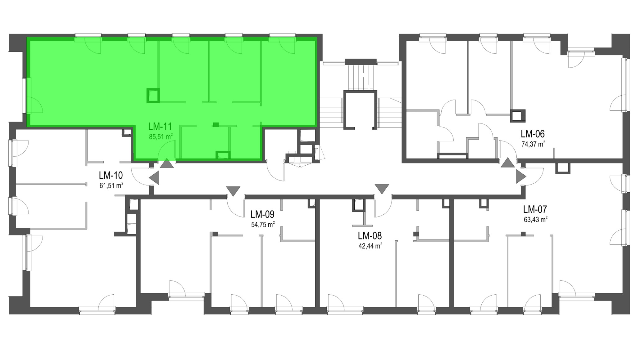
Budynek Szumu Drzew i Kwiatu Paproci K33-3
Powierzchnia 85,51 m2
Piętro 1 (Piętro I)
Pokoje 4
Całkowita cena brutto
1 838 465 PLN
Popup zamykający
Zamknij

Zostaw do siebie kontakt

Oświadczam, że zapoznałem się z polityką prywatności