cena Mieszkania

1 347 580 PLN

cena za metr kw.

26 000 PLN

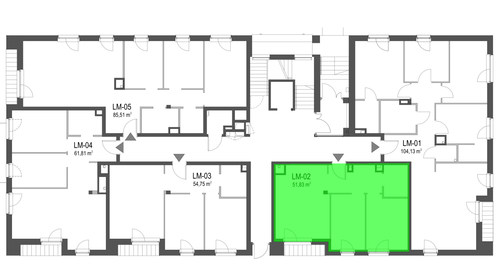
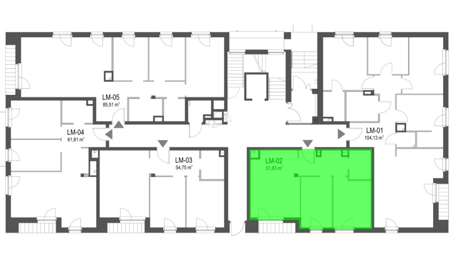
Budynek Szumu Drzew i Kwiatu Paproci K33-3
Powierzchnia 51,83 m2
Piętro 0 (Parter)
Pokoje 3
Ogródek ok. 53,48 m²
Całkowita cena brutto
1 347 580 PLN
Popup zamykający
Zamknij

Zostaw do siebie kontakt

Oświadczam, że zapoznałem się z polityką prywatności