cena Mieszkania

1 396 125 PLN

cena za metr kw.

25 500 PLN

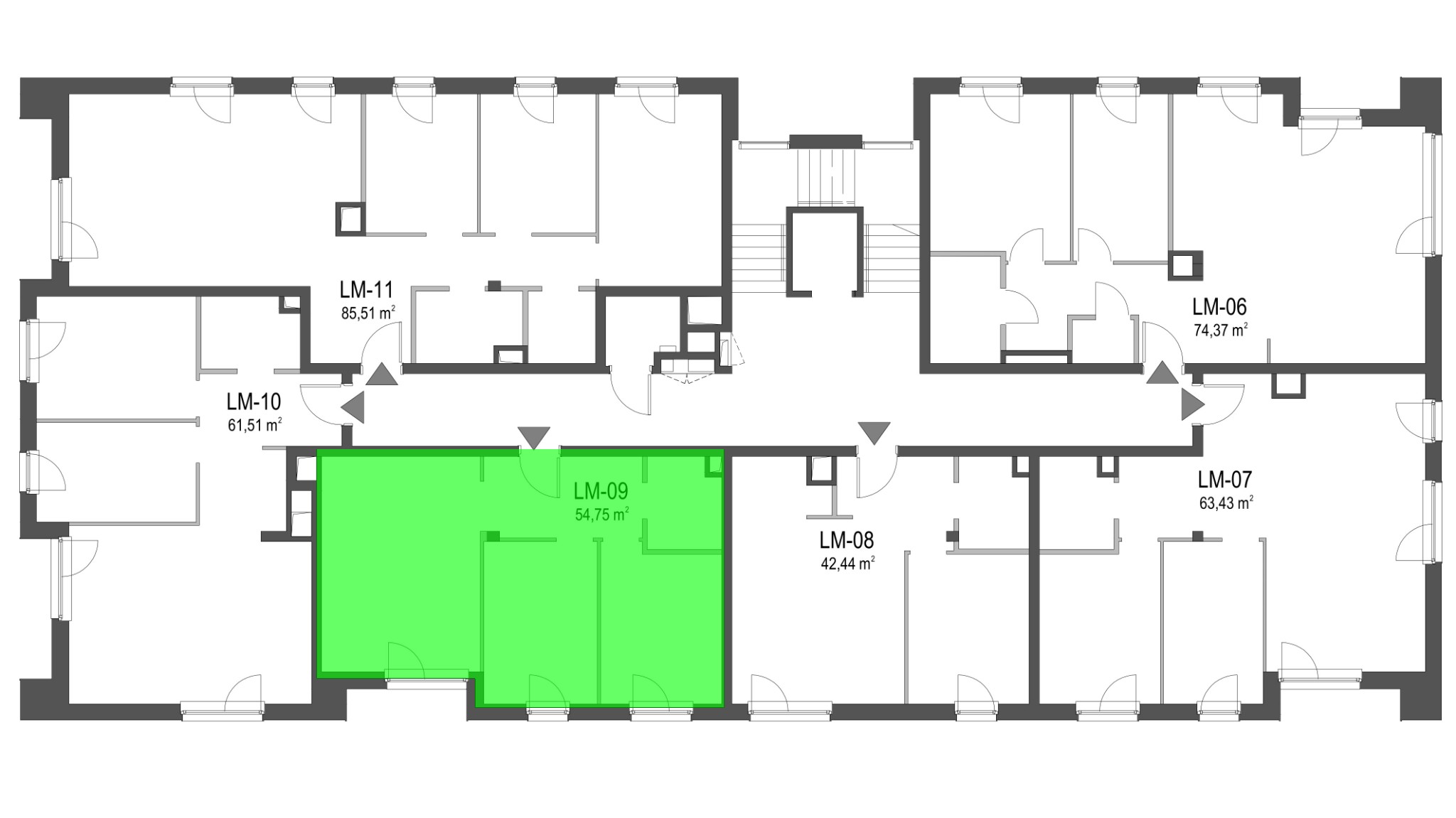
Budynek Szumu Drzew i Kwiatu Paproci K33-3
Powierzchnia 54,75 m2
Piętro 1 (Piętro I)
Pokoje 3
Całkowita cena brutto
1 396 125 PLN
Popup zamykający
Zamknij

Zostaw do siebie kontakt

Oświadczam, że zapoznałem się z polityką prywatności