cena Mieszkania

2 540 250 PLN

cena za metr kw.

25 000 PLN

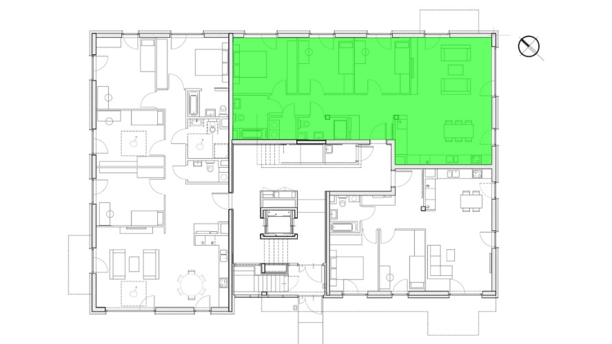
Budynek Szumu Drzew i Kwiatu Paproci WM2
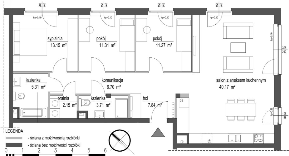
Powierzchnia 101,61 m2
Piętro 0 (Parter)
Pokoje 4
Ogródek ok. 283,45 m²
Całkowita cena brutto
2 540 250 PLN