cena Mieszkania

3 218 865 PLN

cena za metr kw.

25 500 PLN

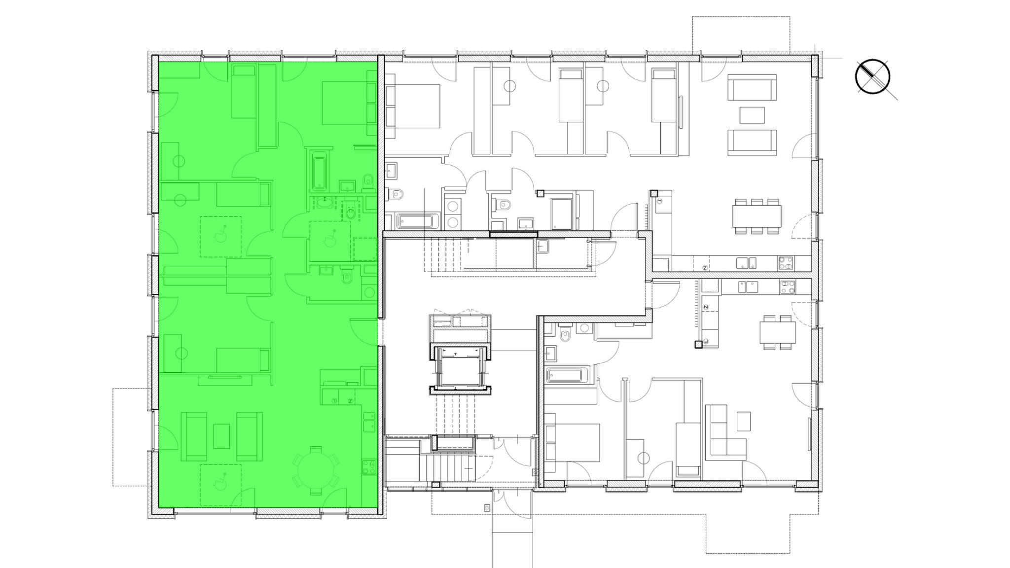
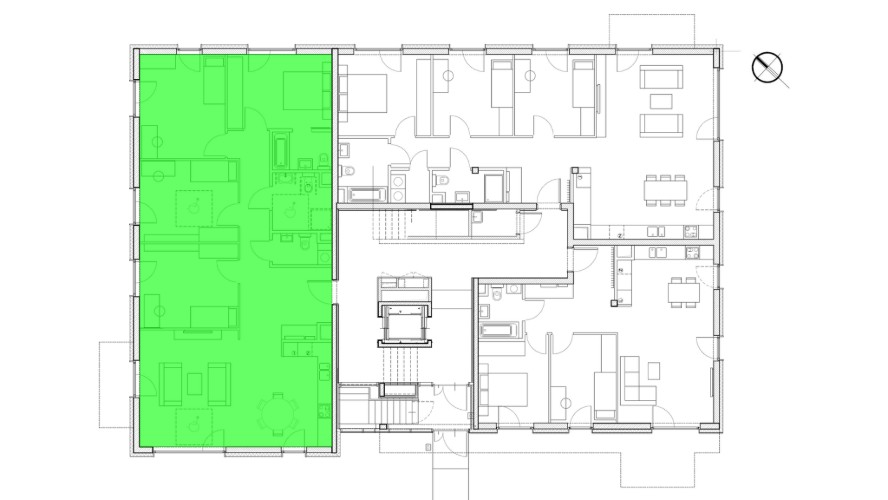
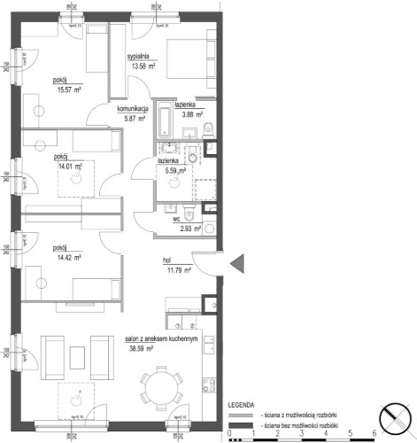
Budynek Szumu Drzew i Kwiatu Paproci WM2
Powierzchnia 126,23 m2
Piętro 0 (Parter)
Pokoje 5
Ogródek ok. 559,07 m²
Całkowita cena brutto
3 218 865 PLN