cena Mieszkania

2 369 640 PLN

cena za metr kw.

24 500 PLN

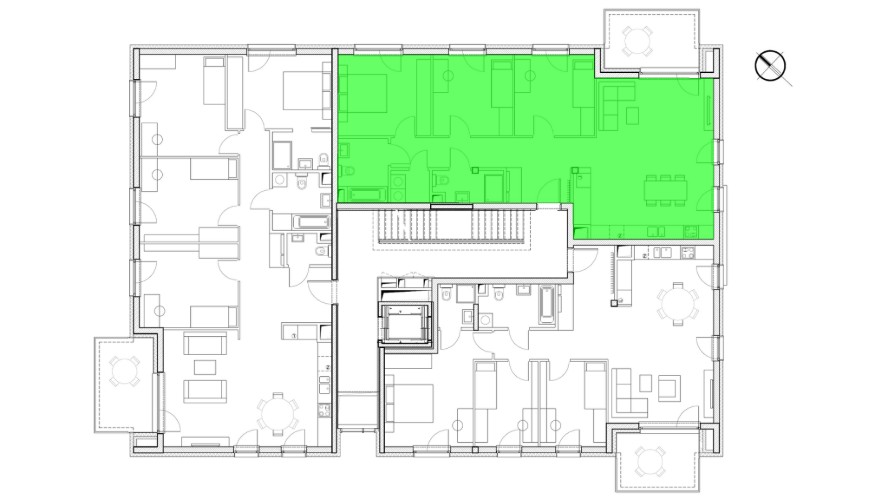
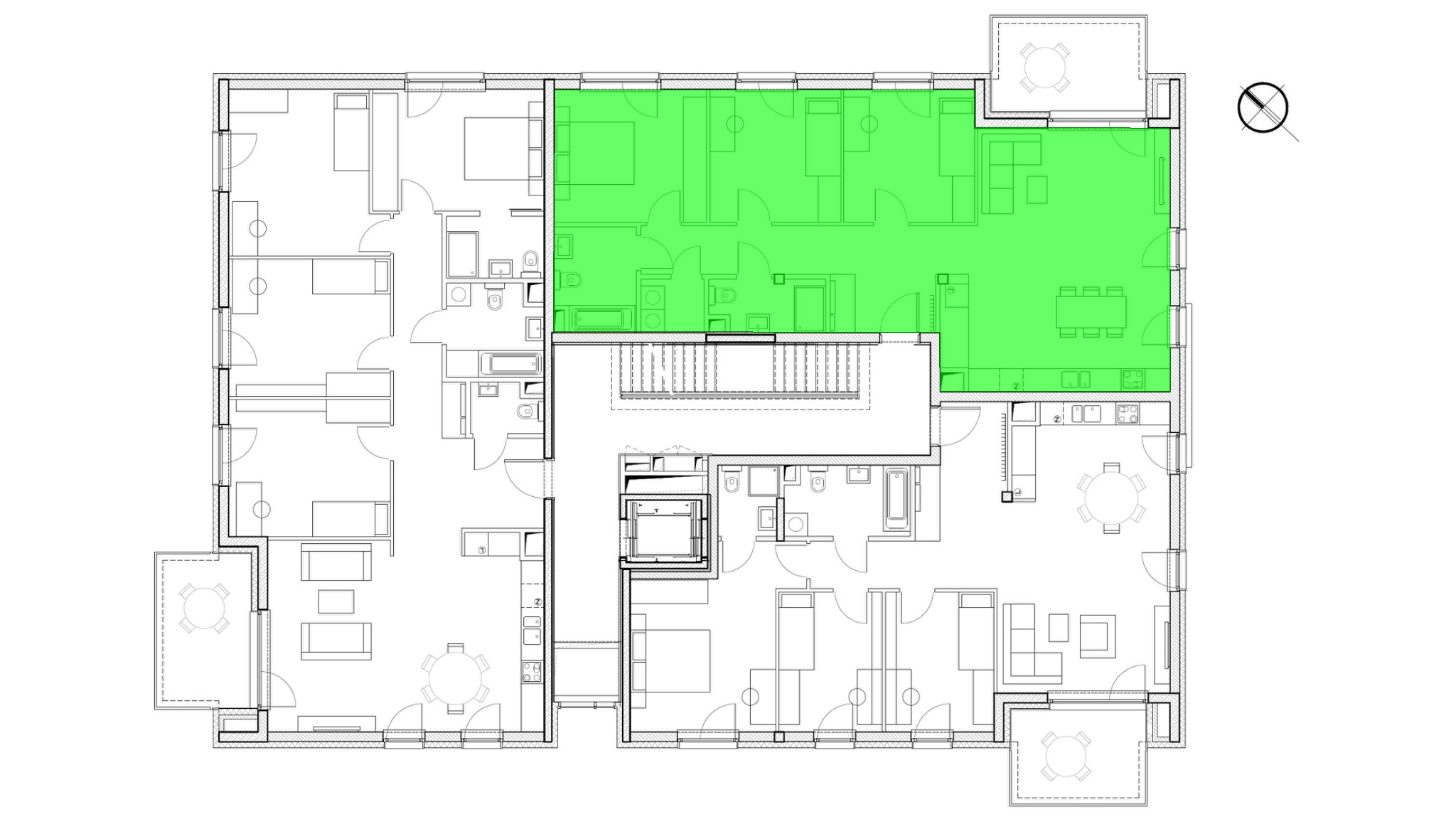
Budynek Szumu Drzew i Kwiatu Paproci WM2
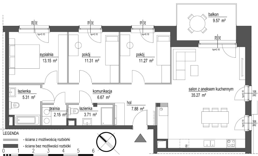
Powierzchnia 96,72 m2
Piętro 1 (Piętro I)
Pokoje 4
Całkowita cena brutto
2 369 640 PLN