cena Lokalu usługowego (netto)

729 015 PLN

cena za metr kw.

10 500 PLN

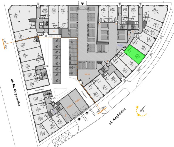
Budynek Angielska 30
Powierzchnia 69,43 m2
Piętro 0 (Parter)
Całkowita cena netto
729 015 PLN