cena Mieszkania

443 772 PLN

cena za metr kw.

8 400 PLN

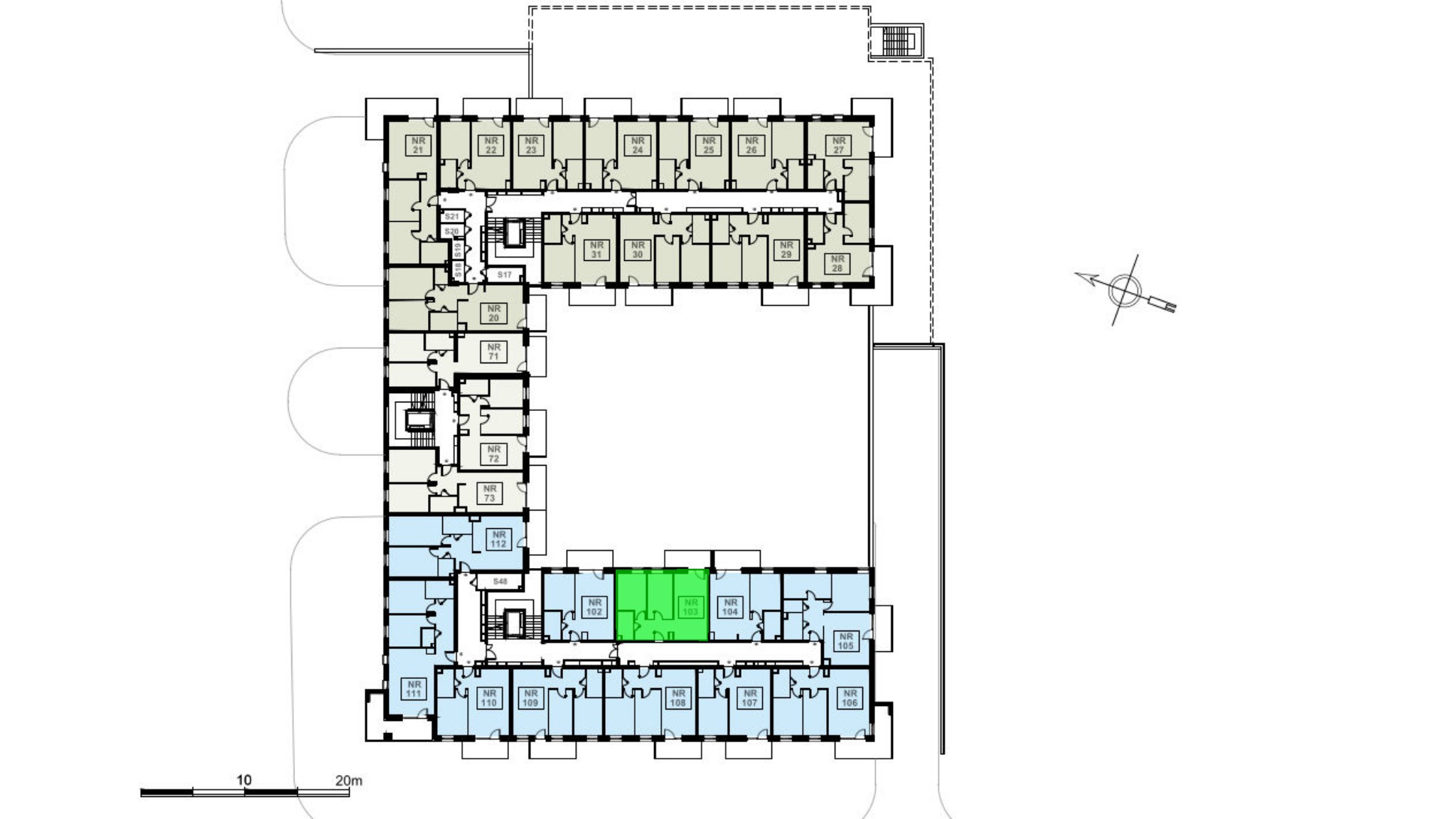
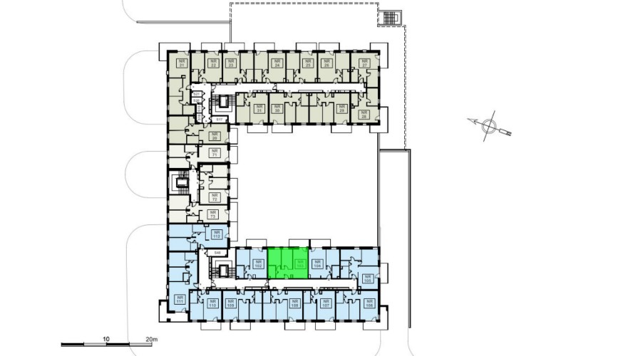
Budynek Ludowa C
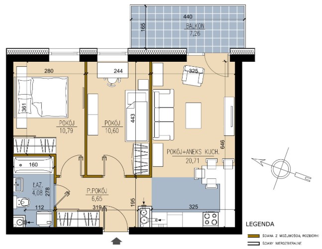
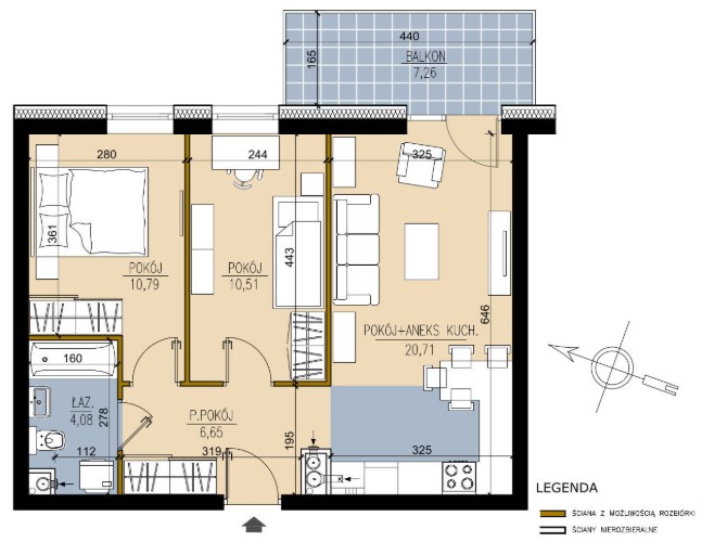
Powierzchnia 52,83 m2
Piętro 2 (Piętro II)
Pokoje 3
Całkowita cena brutto
443 772 PLN